
江の島や富士山を望む海辺まで徒歩5分、都市とリゾートが交差する湘南・片瀬海岸に、デザイン性と機能性を融合させたシェア別荘「GARDEN WALL HOUSE+FAS 片瀬江ノ島」が竣工した。
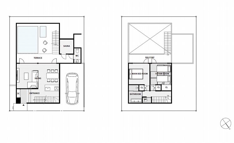
専用プールは光と水が織りなすプライベート空間建物の象徴は高さ7メートルの壁に囲まれた中庭空間だ。周囲の視線を遮断するこの壁は、単なるプライバシー確保にとどまらず、都市における「外に開かない豊かさ」を提示する建築的解答となっている。

その内側には温水プール、露天風呂、そしてロウリュ可能な檜サウナを備えた贅沢なプライベートリゾートが広がる。


インテリアはシンプルで落ち着いたトーンを基調としつつ、無垢材の家具や間接照明が居住空間に温かみを添える。

大きな開口部を介してリビングと中庭が一体となり、内と外の境界を曖昧にする空間構成は、都市部において閉ざされがちな「屋外体験」を豊かに回復させている。



建築技術面では、北海道発の高断熱・高気密仕様をルーツに持つFAS工法を採用。屋根裏の空調機1台で全館の温度・湿度を均一に保つ全館空調は、省エネルギー性と快適性を兼ね備えたシステムであり、湘南の多湿な夏や冬の冷気から住まい手を守る。デザインと性能を両立させた点は、本プロジェクトを単なる「別荘」から「資産価値を持続する建築」へと昇華させている。
また、運営方式にも革新性がある。本物件は36口の共有持分による所有権型シェア別荘であり、従来のリゾート会員権に多い定期借地権と異なり、資産として登記可能な所有権を確保できる。
さらに、全国で展開を予定する「GARDEN WALL HOUSE®」の相互利用ネットワークにより、沖縄・恩納村や千葉・九十九里浜をはじめ、今後100拠点規模へと広がるリゾート群を差額なしで利用可能となる。
この仕組みは、単独の物件所有に留まらず「時間と場所をシェアする新しい不動産モデル」としての可能性を示している。
維持管理や修繕を運営会社が担うため、オーナーはホテル感覚で利用でき、法人所有による福利厚生施設や節税対策としての活用も見込める。
さらに、未使用日の民泊運用による収益分配システムも組み込まれており、ライフスタイルに合わせた柔軟な資産運用が可能だ。
「GARDEN WALL HOUSE+FAS 片瀬江ノ島」は、デザイン・技術・運営の三位一体によって、従来の別荘観を刷新する建築である。
湘南の海辺に生まれたこの試みは、これからのシェア型建築の一つの方向性を鮮やかに示している。
事業主Earth 株式会社、実施設計イエッソスタジオ、施工株式会社 ksパートナーズ
※価格はシェア購入での1口あたりのものになります。また、別途、1棟購入プランもございますので、お問い合わせください











