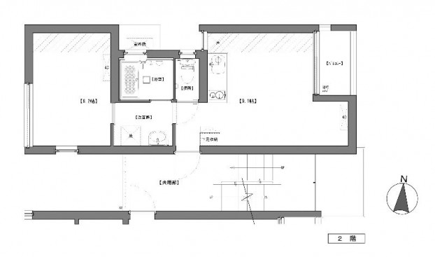
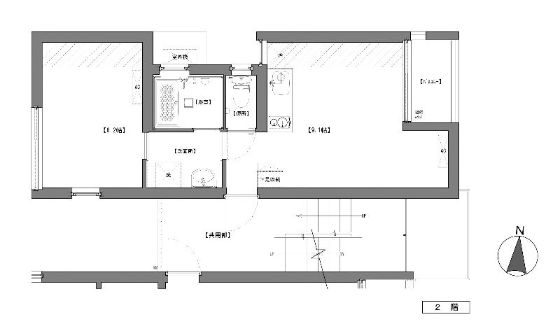
10月上旬より内覧開始予定!!自由が丘エリア、世田谷区深沢に2016年竣工したデザイナーズマンション。白を基調としたモダンな外観と木目フローリングの室内が調和する1LDKプランです。

空と緑に映える、ミニマルな白のファサード
自由が丘エリアの閑静な住宅街・世田谷区深沢に2016年竣工したデザイナーズマンション。
外観は白を基調とした立方体の構成が印象的で、街並みに静かに映える存在感を放ちます。
木の温もりと白の清潔感が調和する、心地よいLDK室内は木目フローリングと白壁を基調にしたミニマルな空間。1LDKプランはコンパクトながらも窓面を大きくとり、豊かな採光が得られる設計です。


リビングに隣接する寝室はシンプルで落ち着いた雰囲気、バスルームにも窓を設け明るさと換気性能を確保しています。洗練された建築デザインと実用性を兼ね備えた住まいは、自由が丘の上質な暮らしを求める方にふさわしい一室です。




