自由が丘エリア、世田谷区深沢に建つデザイナーズマンション。白を基調としたモダンな外観と木目フローリングの室内が調和する1LDKプランです。

空と緑に映える、ミニマルな白のファサード
自由が丘エリアの閑静な住宅街・世田谷区深沢に2016年竣工したデザイナーズマンション。
外観は白を基調とした立方体の構成が印象的で、街並みに静かに映える存在感を放ちます。

オープンキッチンのあるLDK。白と木の温もりが調和する、心地よい空間です

窓からは借景のグリーンも垣間見えます
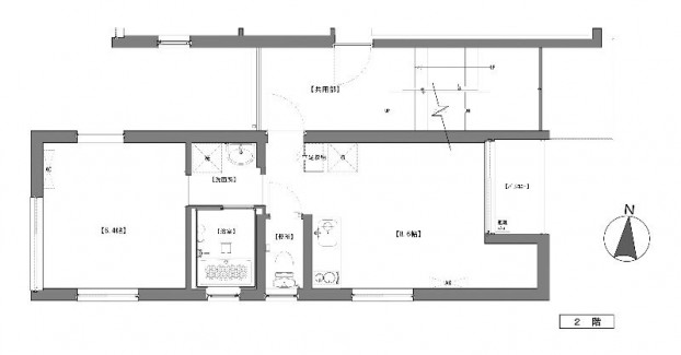
室内は木目フローリングと白壁を基調にした33.12㎡のミニマルな空間ながら1LDKプランになっています。コンパクトながらも窓面を大きくとり、豊かな採光が得られる設計でお2人住まいにも充分ご対応いただけます。

寝室

窓が付いた明るいバスルーム
リビングに隣接する寝室はシンプルで落ち着いた雰囲気、バスルームにも窓を設け明るさと換気性能を確保しています。洗練された建築デザインと実用性を兼ね備えた住まいは、自由が丘の上質な暮らしを求める方にふさわしい一室です。


当物件を実際に体感しませんか?
写真や記事だけでは伝わりきらない、洗練された暮らし。
JoyLifeStyleでは内見予約・資料請求を随時受け付けています。
東京・湘南でのデザイナーズ賃貸やSOHO物件をお探しの方におすすめです。
※空室状況や条件によりご案内できない場合がございます。最新情報はお気軽にお問い合わせください。



