11/9~内見開始予定!!世田谷区等々力のデザイナーズ賃貸。2022年築・47.19㎡の1LK。ステージ状の高低差空間が魅力。駒沢公園近くの静かな住環境で1~2名の暮らしに最適です。

世田谷区等々力。穏やかな住宅地の中にひっそりと姿を見せる、2022年築のデザイナーズマンション。駅からは程よい距離を保ちながら、駒沢公園を日常使いできる贅沢なロケーションは、静けさもアクティブさも手に入る住環境です。
外観は、無垢なコンクリートの質感とソリッドなボリュームで構成された端正な建築。シャープなラインが織りなすストイックな佇まいは、都市のシーンに溶け込みながらも確かな存在感を放っています。

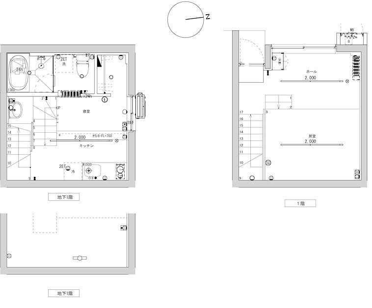
ご紹介するのは、1〜B1階を使った変則的な1LK / 47.19㎡の空間。1〜2名でゆったりと暮らすのにちょうどよいサイズ感です。

この住まいの最大の特徴は、“ステージのようなホール”と名付けられた印象的な空間。
コンクリート土間のステップによって生まれた高低差が、視線の抜けとドラマチックな奥行きを演出します。
住まいでありながら、まるでギャラリーや小さな劇場のような…
暮らしがひとつひとつシーンとなって立ち上がる場所。
家具のレイアウトによって
・リビング上部をステージのような見せ場に
・下部をアトリエやワークスペースに
といった、自由度の高いコンポジションが可能。
コンクリートの質感とあいまって、自分らしいスタイルが映える住まいです。
等々力の静けさと、建築がもたらす創造性。
その両方を日常に取り入れたい方へ。
ここにしかない舞台を、ぜひあなたの暮らしで完成させてください。
当物件を実際に体感しませんか?
写真や記事だけでは伝わりきらない、ステージのようなホールのある空間。
JoyLifeStyleでは内見予約・資料請求を随時受け付けています。
東京・湘南でのデザイナーズ賃貸やSOHO物件をお探しの方におすすめです。
※空室状況や条件によりご案内できない場合がございます。最新情報はお気軽にお問い合わせください。








