12/7~内見開始予定!!駒沢公園通り沿い、世田谷区深沢の街並みに溶け込むデザイナーズマンション。
6階2LDKの室内はコンクリートの構造美と光が交差する開放的な空間。窓の向こうに広がる抜ける眺望が、日常に静かな贅沢をもたらします。

世田谷区深沢、駒沢公園へと続く緑の並木道に、新しい都市のレイヤーが加わった。2024年に誕生したこのデザイナーズマンションは、駒沢公園通りに静かに佇みながら、街と人、自然と建築の距離感を絶妙にデザインしている。
1階にはショップやカフェが軒を連ね、上層階には、柔らかな光と重厚な構造が共存する居住空間。
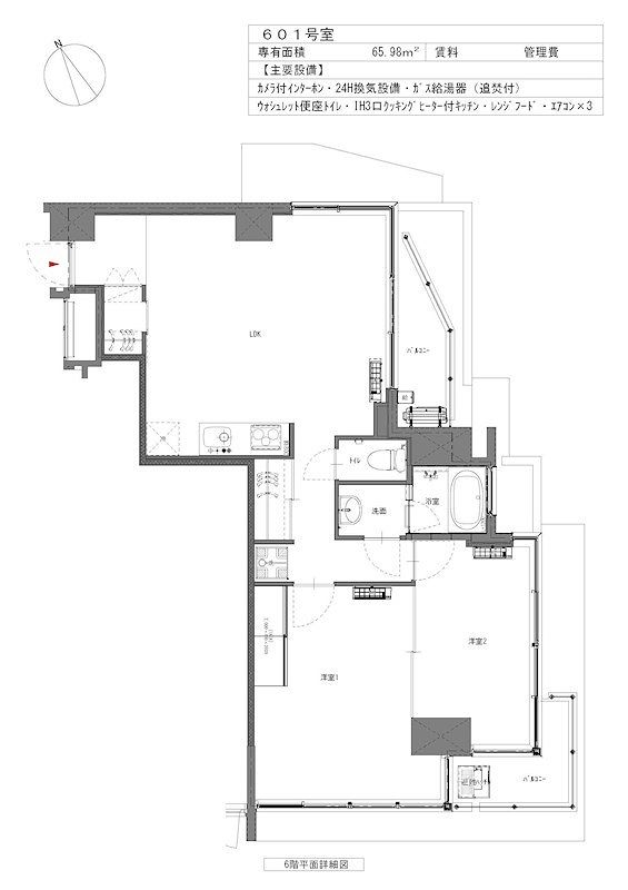
6階に位置するこの2LDK(65.98㎡)の部屋は、深沢の空を切り取るような大きな開口が特徴だ。コンクリートの梁と壁がリズムを刻み、都市の景観を額縁のように捉える。
晴れた日には、リビングいっぱいに広がる光が床を滑り、静けさの中に時間の流れを感じさせる。素材の質感と構造の美しさをそのままに、過剰な装飾を排した空間は、まさに“建築を住まう”という体験そのもの。
ここには、深沢という街が持つ上質さと、現代建築の静かな自信が、確かに息づいている。
当物件を実際に体感しませんか?
写真や記事だけでは伝わりきらない、空を切り取る眺望。
JoyLifeStyleでは内見予約・資料請求を随時受け付けています。
東京・湘南でのデザイナーズ賃貸やSOHO物件をお探しの方におすすめです。
※空室状況や条件によりご案内できない場合がございます。最新情報はお気軽にお問い合わせください。







