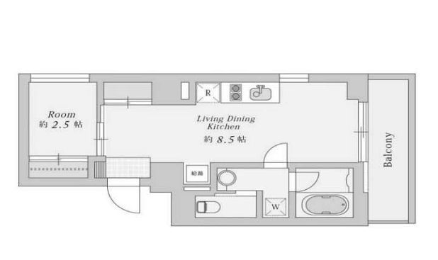
西新宿8丁目、八島建築設計事務所設計のデザイナーズマンション。当室は4階33.70㎡の1LDK。素材の質感を活かした落ち着きある空間で、SOHO・オフィス利用も相談可能な都心の拠点です。

新宿区西新宿8丁目、再開発が進む街並みに2012年に誕生した、八島正年・八島夕子氏/八島建築設計事務所設計のデザイナーズマンション。

コンクリートや木といった素材本来の質感や色味を大切にし、時を重ねるほどに身体になじむ住まいを目指して設計されています。

賃貸でありながら愛着の湧く、都会の中の安息の場所。当室は4階・33.70㎡の1LDK。

SOHO利用もご相談可能で、都心に拠点を構えたい方にもおすすめの一室です。

当物件を実際に体感しませんか?
写真や記事だけでは伝わりきらない、素材が息づく、西新宿のデザイナーズ。
JoyLifeStyleでは内見予約・資料請求を随時受け付けています。
東京・湘南でのデザイナーズ賃貸やSOHO物件をお探しの方におすすめです。
※空室状況や条件によりご案内できない場合がございます。最新情報はお気軽にお問い合わせください。



