2/15~内見開始予定。世田谷区等々力に建つ、2021年竣工のデザイナーズマンション。
RC造・地上3階地下1階建ての建物で、各住戸ごとに多層構成を採用した、個性ある空間設計が特徴です。

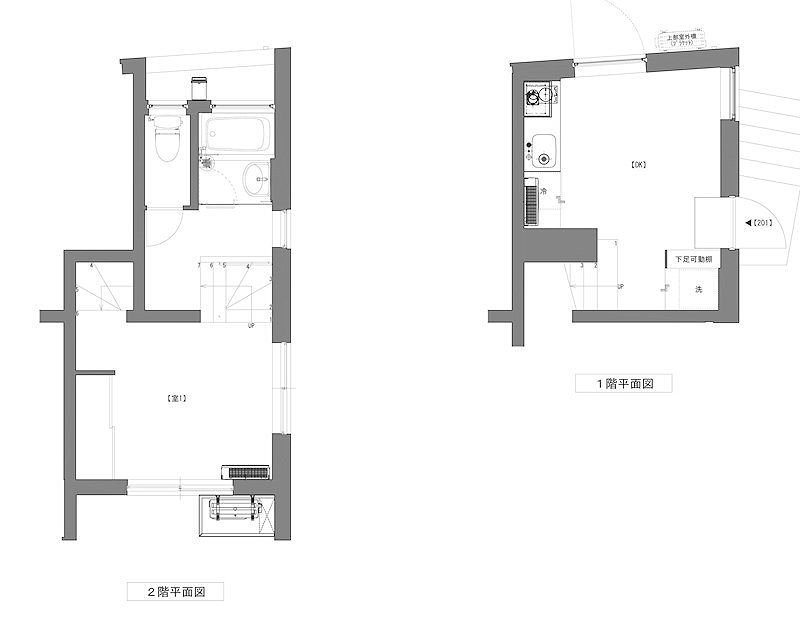
ご紹介するのは、2階に位置する32.23㎡の1DKプラン。

下階

上階
キッチンと居室を上下階に分け、ダイニングキッチンから寝室、バスルームへと緩やかにつながるステップフロア構成により、コンパクトながらも立体的で奥行きを感じられる住空間となっています。

最寄りの東急大井町線「尾山台」駅からは徒歩約12分。

紀伊国屋や西友といったスーパーが身近に揃い、日常の利便性も良好です。
自由が丘や駒沢公園へも徒歩圏内という、暮らしと感性のバランスが取れたロケーションも魅力のひとつです。
当物件を実際に体感しませんか?
写真や記事だけでは伝わりきらない、コンパクトな2層空間。
JoyLifeStyleでは内見予約・資料請求を随時受け付けています。
東京・湘南でのデザイナーズ賃貸やSOHO物件をお探しの方におすすめです。
※空室状況や条件によりご案内できない場合がございます。最新情報はお気軽にお問い合わせください。




