目黒駅徒歩6分、白い外観が印象的なデザイナーズマンション。チンクエ・テルレを着想源にした都市の“集落”のような集合住宅です。2~3階のメゾネット1LDKは大開口から光が満ち、眺望も良好。住居はもちろんSOHO利用にも適した開放的な空間です。

目黒駅から徒歩6分。目黒通りから一本奥へ入り、ゆるやかな坂を下った先に光を受けて白く際立つ端正な建物がふっと姿を現します。

その名は、イタリアの世界遺産《チンクエ・テルレ》に由来し、“terre=集落”という意味の通り、都市の中に小さな居住群をつくるような意図が込められています。

リゾート建築を思わせる純白の外観に対し、地下1階と1階はテナント、2~3階にはフラットとメゾネットが配された住居ゾーンが広がります。

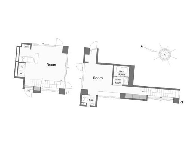
ご紹介の住戸は、2-3階を縦に使う、広さ51.45㎡のメゾネットタイプの1LDKプラン。

大きく取られた開口部から溢れる光と、目黒の街を切り取るような眺望が相まって、空間は軽やかな開放感に満たされています。

住まいとしてはもちろん、SOHOやオフィスとしても高い適性を備えた、都市型メゾネットの一室です。

関根裕司氏/アルボス 一級建築士事務所
当物件を実際に体感しませんか?
写真や記事だけでは伝わりきらない、アートに暮らす、光満ちるデザイン空間。
JoyLifeStyleでは内見予約・資料請求を随時受け付けています。
東京・湘南でのデザイナーズ賃貸やSOHO物件をお探しの方におすすめです。
※空室状況や条件によりご案内できない場合がございます。最新情報はお気軽にお問い合わせください。



