渋谷×代官山、感性が交差するデザイナーズ【賃貸/渋谷区/~35万/45㎡以上】
new
- 賃料
332000円
- マンション
- 間取
1LDK
- 共益費・管理費
- 10000円
|
- 敷金
- 1ヶ月
- 更新料
- 1ヶ月
|
| 所在地 |
東京都渋谷区桜丘町 |
| 交通 |
JR山手線渋谷駅 徒歩8分 東京メトロ半蔵門線渋谷駅 徒歩8分 |
渋谷と代官山、ふたつの感性が交差する桜丘町に佇む、2007年築のデザイナーズマンション。設計は、グッドデザイン賞受賞歴を持つ建築家・谷内田章夫氏。都市の躍動と洗練が共存するロケーションにふさわしい、完成度の高い一棟です。
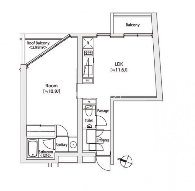
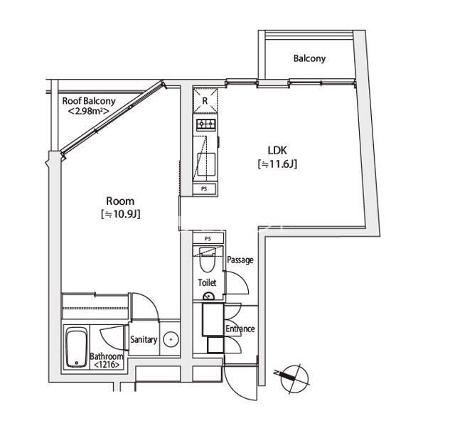
ご紹介するのは、5階部分・49.93㎡の1LDKプラン。

コンクリートの無機質な力強さと、シナベニヤのやわらかな質感が織りなす空間は、初期デザイナーズの系譜を感じさせる秀逸なバランス。
東京という都市をアクティブに愉しみながら、感性豊かに暮らすための一室。都市生活者のためのアーバンデザイナーズ、ぜひその魅力をご体感ください。


当物件を実際に体感しませんか?
写真や記事だけでは伝わりきらない、コンクリートとシナベニヤが調和する空間。
JoyLifeStyleでは内見予約・資料請求を随時受け付けています。
東京・湘南でのデザイナーズ賃貸やSOHO物件をお探しの方におすすめです。
※空室状況や条件によりご案内できない場合がございます。最新情報はお気軽にお問い合わせください。
| 築年月 |
2007/04 |
新築/中古 |
|
| 面積 |
49.93m² |
計測方式 |
|
| バルコニー |
m² |
向き |
|
| 建物階数 |
地上8階 |
部屋階数 |
5階 |
| 部屋/区画番号 |
501 |
総戸/区画数 |
30 |
| 建物構造 |
RC |
| 間取内容 |
|
| 駐車場 |
|
取引態様 |
仲介 |
| 引渡/入居時期 |
|
現況 |
|
| 周辺環境 |
|
| 設備・条件 |
事務所不可 ガスコンロ 二口コンロ システムキッチン 追い焚き バス・トイレ別 温水洗浄便座 エアコン 室内洗濯機置き場 CATV CSアンテナ BSアンテナ インターネット有 オートロック TVドアホン 宅配ボックス 駐車場有 駐輪場 バイク置き場 バルコニー フローリング デザイナーズ 保証会社利用必須、インターネット無料、洗濯機付き、鍵交換費用27,500円(内税) |
| 物件番号 |
r2266 |
※物件掲載内容と現況に相違がある場合は現況を優先と致します。